Skip til hoved indholdet Søg Søg Job Job

Afdeling 1, 1. sal bolig 207 - 248 på Møllegården

Afdelingen består af 41 boliger fordelt på 2 etager. På 1. sal ligger bolig 207 - 248. Alle boligerne fremstår lyse og venlige.

Velkommen til Afdeling 1, 1. sal

Hvis du allerede har fået tilbudt en bolig på afdelingen, er du velkommen til at tage kontakt til os, så vi kan aftale hvornår du kan komme forbi og se boligen.

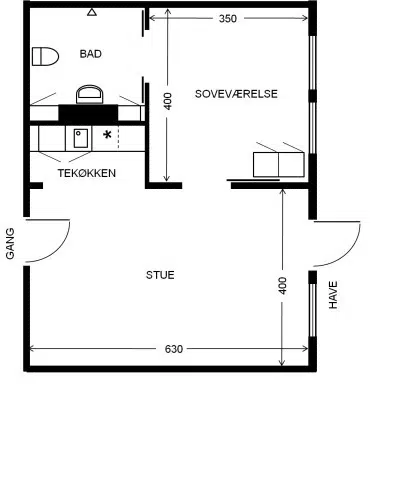
På nedenstående oversigt kan du finde skitsetegninger på de forskellige boligtyper som findes på 1. sal. Vær opmærksom på at skabenes placering kan afvige fra tegningen.

De angivne arealer er netto arealer.

Afdelingen har store fællesarealer. Stort køkken/spisestue kombineret med opholdsstue. Fra spisestuen er der udgang til en stor terrasse (stuen) eller en balkon (1. sal).

Har du spørgsmål, ris eller ros, er du velkommen til at kontakte os.

Med venlig hilsen

Noor Shabdar
Daglig leder

Oversigt over boligerne i Afdeling 1, 1. sal






Møllegården

Bagsværd Møllevej 9, 2800 Kongens Lyngby
mollegaarden@gladsaxe.dk

Ring til os

Gladsaxe Kommune
Rådhus Allé 7
2860 Søborg

CVR: 62761113

Telefon: 39 57 50 00
kommunen@gladsaxe.dk

Borgerservice

Telefontid

Mandag-fredag: 9-14

Personlig henvendelse

Kun med tidsbestilling. Bestil tid på gladsaxe.dk/bestiltid

Åbningstid

Mandag-onsdag og fredag 10-14
Torsdag 10-18

Få teksten læst op Tilgængelighedserklæring Giv os feedback